Hradeckega cesta, 84, Ljubljana
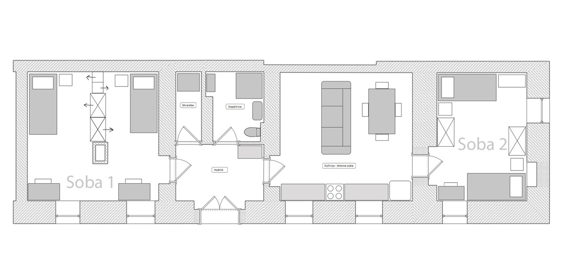
Na Hradeckega cesti, v bližini centra, se oddaja popolnoma opremljeno, prijetno in mirno 3-sobno stanovanje za dolgoročni najem. Stanovanje je bilo pred kratkim prenovljeno in se oddaja prvič. Stanovanje vključuje dve spalnici (vsaka z dvema ležiščema), skupno kuhinjo z dnevno sobo, skupno kopalnico in shrambo. Stanovanje je zasnovano kot udoben prostor za skupno bivanje štirih oseb. V vsaki spalnici sta predvideni dve polnovredni ležišči ter individualne omare in delovne mize. Sobe so svetle, dobro prezračene in primerne tako za počitek kot za študij. Skupna opremljena kuhinja je povezana s prostorno dnevno sobo, ki jo krasi avtorska stenska poslikava. Velika skupna kopalnica ima tuš in 80-litrski bojler. Stanovanje je popolnoma opremljeno in pripravljeno na vselitev. V stanovanju so pralni stroj, sušilni stroj, sesalnik, pomivalni stroj, indukcijska plošča, pečica in mikrovalovna pečica. Ogrevanje je talno; stanovanje je pozimi toplo in suho, poleti pa prijetno hladno. V prostoru deluje 5G modem. Trgovini Hofer in Mercator sta oddaljeni 10 minut hoje, do postajališč LPP (linije 05, 09, 13, 24, N5) je 5 minut, do Fakultete za šport pa 10 minut. Cena: 320 EUR na mesec na osebo + skupni stroški + varščina (320 EUR). Kajenje in hišni ljubljenčki niso dovoljeni. Prosim za sporočilo s kratko predstavitvijo.